Как самостоятельно установить межкомнатную дверь. Пошаговая инструкция по установке с нуля
Как самостоятельно установить межкомнатную дверь. Пошаговая инструкция по установке с нуля
Установка межкомнатных дверей своими руками не займет много времени, достаточно запастись нужным инструментом, закупить необходимый материал и можно приступать к работе. Следуйте подробной поэтапной инструкции и успех вам гарантирован.
Данный план действителен для установки распашных дверей, раздвижные монтируются несколько иначе, но аналогичным образом.
Установка межкомнатных дверей своими руками
Поставить новую дверь самостоятельно совсем несложно — были бы под рукой нужные инструменты.
А начинать эксперимент лучше с самых незаметных дверей — например, в кладовку. Предлагаем вашему вниманию подробную инструкцию к установке межкомнатной двери.
Подготовительная работа. Прежде чем отправиться в строительный гипермаркет или на рынок, определите бюджет мероприятия по замене дверей. Учтите, что если решили менять двери во всей квартире, то покупать их нужно одновременно.
Позже нужную модель могут снять с производства или на складе не окажется дверей требуемого оттенка.
Имейте также в виду, что межкомнатная дверь — это не только дверное полотно! Понадобятся ещё коробка, доборы, порог, наличники, иногда ручки. Общая стоимость всего этого добра приближается к стоимости самого полотна.

Если ширина дверных проёмов в вашей квартире превышает 110 см, придётся либо покупать двустворчатую дверь (а она дороже одностворчатой), либо уменьшать проём.
В общем, как следует посчитайте предстоящие расходы, чтобы решить, какие именно двери вы будете покупать: из массива, шпонированные или пластиковые.
Ставим дверь самостоятельно: пошаговая инструкция. Сразу заметим, что если вы купили дорогие двери из массива дерева, тогда лучше устанавливать их с помощью специалистов. Ведь цена возможных ошибок при установке слишком высока. Хотя если действовать аккуратно, не спеша и в строгом соответствии с нашей инструкцией, риск невелик.Уберите старую дверь.
Сначала при помощи стамески и молотка снимите наличники. Затем при помощи гвоздодёра или лома приподнимите дверь и снимите её с петель. После чего останется лишь удалить крепление двери (шурупы или гвозди) и вынуть коробку из дверного проёма.
Подготовьте дверной проём для установки новой коробки.
Если в стене остались деревянные бруски, на которых держался старый короб, то и новый будет крепиться к ним шурупами. В противном случае его закрепляют при помощи дюбелей.
Установите новую коробку в дверной проём. Прежде чем зафиксировать её на месте, проверьте вертикали при помощи отвесов.
Как установить межкомнатную дверь без порога. Установка дверной коробки без порога
Как установить межкомнатную дверь без порога своими руками
Перед тем как установить межкомнатную дверь без порога в жилом помещении, офисе, надо изучить некоторые правила. Самое первое — неподвижность полотна. Если даже дверь немного приоткрыта, она не должна закрываться или открываться. При проверке необходимо обратить внимание на наличие сквозняка.
Основные правила монтажа
Для установки межкомнатной двери без порога своими руками, надо придерживаться правил и рекомендаций. Они помогут смонтировать конструкцию безошибочно — дверь прослужит долгое время.
Внимание! Качественная установка блока — это свободное открытие-закрытие полотна. То есть, между дверью и коробкой остается пространство по всему периметру в 2-3 мм.
Если же проем и дверной блок не установлены по вертикали, нужен будет порог. В процессе установки блок должен находиться ровно. Для этого выравнивание идет по одной из стен. В итоге неровность второй стены покажет себя по завершении монтажа, что смотрится некрасиво (идет перекос) — порог нужен для сглаживания подобных дефектов.
Перед тем как поставить межкомнатную дверь без порога самому, необходимо провести все работы по выравниванию стен, а также закончить отделку пола (положить линолеум, ламинат). Если коробку уже поставили, тогда полотно снимают, а наличники оклеивают скотчем.
Необходимые инструменты
Для монтажа дверного блока нужны такие инструменты:
- дрель, шуруповерт или набор отверток, перфоратор;
- ножовка;
- уровень, метр, карандаш;
- молоток, стусло;
- деревянные бруски;
- монтажная пена, малярная липкая лента.
Малярная лента — это не основной элемент. Она понадобится только для защиты коробки при нанесении монтажной пены на место брусков.
Если нет электроинструмента, его можно взять в аренду или попросить на время у соседа, знакомого.
Процесс установки
Установка межкомнатных дверей без порога предполагает определенный алгоритм действий. При его соблюдении монтаж пройдет быстро.
- Подготовительные работы с полотном и коробкой. Каждый мастер устанавливает блок по-своему. Одни сначала собирают на ровном горизонтальном месте коробку и монтируют ее в проем, другие — собирают полный комплект и устанавливают его. Отличием является ровность стен. Если стены гипсокартонные, с ними окончены все шпаклевочные и отделочные работы, тогда блок устанавливают полностью в сборе. При неровных стенах по вертикали (расход виден при подвешенном отвесе), сначала собирают раму, выравнивают ее, устанавливают. Только после проводят работу с петлями, полотном, фурнитурой.
- Сбор рамы. На чистом полу отрезают необходимую высоту вертикальных стоек. Стандартные блоки выпускают согласно ГОСТу. Обрез делают ровно. Для этого линию отрезания отмечают карандашом. Далее по размерам отрезают горизонтальную планку. Все элементы соединяют в раму и фиксируют друг к другу саморезами. Перед тем как фиксировать все элементы, для крепежей делают отверстия.
- Сборка полотна, монтаж фурнитуры. К полотну надо прикрепить необходимые элементы — ручки, защелки, замок. Есть двери, где места установки фурнитуры отмечены производителем, но в основном полотна пустые. Дверь может открываться как с левой, так и с правой стороны — это желание хозяина, как и ее расположение. Она не должна мешать двери, открывающейся рядом, или другим предметы интерьера. Если нет пространства для полного открытия, устанавливают гармошку или раздвижной вариант.
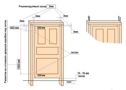
- Петли для навешивания полотна. Для монтажа необходимо сделать разметку. Межкомнатные двери в основном легкие. Для них требуется 2 петли — снизу и сверху. Если дверь из натурального дерева, она тяжелая — потребуется средняя петля. Для разметки отмечают от верха и от пола по 20 см. Разметку делают на лудке и полотне. В зависимости от модели петли, иногда необходимо сделать небольшое углубление (2-3 мм, зависит от толщины материала петли). Крепление производят саморезами.
- Установка ручки. Ручки представлены на рынке в большом ассортименте. Есть фурнитура с запирающим механизмом, с защелкой (язычком), и без него. Процесс установки для всех моделей одинаков. От пола отмеряют 90 — 120 см. В торце двери делают углубление для планки замка, защелки. Планка заходит полностью в полотно и не торчит над поверхностью. На ровной плоскости двери ставят отметку для ручки, вырезают отверстие. Устанавливают ручку, замок, крепят саморезами планку в торцевой части. Второй элемент на раме ставят после насаживания полотна на петли.
- Навешивание двери. Есть 2 варианта монтажа межкомнатного блока в проем. В обоих случаях необходима помощь второго человека.
Сборка и установка межкомнатных дверей. Пошаговая инструкция
Если устанавливаемые межкомнатные двери точно подходит под имеющийся проем, то их монтаж рекомендуется производить на завершающем этапе ремонта коттеджа или квартиры. Тогда, когда уже побелен потолок и поклеены обои. Но если дверной проем нужно расширять, то делать эту работу стоит на этапе черновой отделки. Грязи и пыли при разбивании стен образуется немало.

Пошаговая инструкция установки межкомнатных дверей
Непосредственно установка межкомнатных дверей своими руками производится в шесть шагов:
- Сборка коробки.
- Установка петель.
- Навес дверного полотна.
- Монтаж порога и доборов.
- Крепление наличников.
- Монтаж фурнитуры двери (замков и ручек).
Сборка коробки
При изучении, какие трубы лучше для водопровода и проще монтируются, приходится рассматривать множество металлических и пластиковых вариантов. С дверными блоками для интерьеров гораздо проще. Практически все они сделаны из пиломатериалов. Конструкции из пластика или алюминия в частных домах встречаются крайне редко. В итоге работать при установке межкомнатных дверей приходится только с древесиной, что не так уж сложно.

Виды дверных коробок
Собрать деревянную дверную коробку можно двумя способами:
- срезом углов верхней перекладины и вертикальных стоек под 45 градусов;
- соединение перекладин и стоек встык без уголковых обрезов.
Первый вариант смотрится элегантней. Однако второй более прост в самостоятельном раскрое. Только при нем надо быть очень аккуратным при срезе бортика на верхней перекладине, чтобы вертикальные бруски встали ровно и без зазоров. При этом выбирать способ сборки внешнего каркаса межкомнатной двери рекомендуется в зависимости от дизайна интерьера.

Необходимые размеры и допуски для сборки дверной коробки
Чтобы полотно потом не сидело в коробе слишком плотно, при обрезке перекладины следует заложить по 3 мм дополнительно слева и справа. Скрепление горизонтальной и вертикальных деталей производится в углах сверху саморезами в торец стоек снаружи. А чтобы при вкручивании этих шурупов бруски коробки не треснули, надо вначале просверлить в отверстия тонким сверлом (на миллиметр тоньше, чем крепеж).
При этом несущую стойку, где будут петли, не стоит на этом этапе установки двери притягивать до конца жестко. Ее следует лишь слегка зафиксировать на предназначенном месте.
Установка петель
Петли сначала навешиваются на полотно с отступом сверху и снизу в 200–250 мм. Шарниры у межкомнатных дверей бывают накладными («бабочки») и потайными. Первые достаточно приложить к торцу внутренней малой частью и закрепить саморезами. А для вторых придется предварительно вырезать канавки.

Необходимые замеры для установки петель
Далее полотно вставляется в уложенный на полу короб. И производится разметка мест крепления петель на стойках. Но сначала между торцом полотна и деталями коробки надо вставить деревяшки (кусочки ДВП) толщиной в 3 мм, чтобы там потом остались зазоры.
Затем незатянутая до конца несущая стойка откручивается от перекладины и к ней прикручиваются петли. А потом она ставится на место и окончательно фиксируется саморезами.
Установка полотна двери
После практически полностью собранную межкомнатную дверь следует поставить в проем и отрегулировать по вертикали и горизонтали с помощью уровня. Для фиксации блока в нужном положении применяются клинья и деревяшки.
Заделка щелей, отверстий и установка добора
Между внешней стороной блока и торцом стены допускается оставлять просвет толщиной от 0,5 до 3 см. Но если дом деревянный, то этот зазор должен быть не менее 1,5 см на случай усадки сруба.

Варианты добора для межкомнатных дверей
Крепление коробки осуществляется анкерными болтами, которые размещаются под петлями и замочной накладкой. Для этого вначале в вертикальных стойках с обеих сторон просверливаются отверстия до стены. Затем блок убирается и сверлится уже сама межкомнатная перегородка. Если работать дрелью без уборки короба, то есть серьезный риск нечаянно повредить его декоративное покрытие.
Также коробку закрепить можно металлическими подвесами. Они сначала прикручиваются к стойкам, а затем после загиба на стену притягиваются к ней дюбель-саморезами.
Если стена толстая, то потребуется ставить доборы (фальш-откосы, доборный брус). У короба есть так называемая зона охвата. Это внутреннее пространство и необходимо задекорировать. Изготавливаются доборы из массива, ДВП или МДФ. После распила под необходимые размеры их надо просто приставить к коробке и прикрутить к ней длинными саморезами. Затем по всему периметру проема под них также подкладываются распорочные клинья и распорка посередине.

Инструкция по монтажу добора
Дальше остается лишь распылить монтажную пену и оставить блок в закрытом состоянии на некоторое время в покое. Продолжать устанавливать межкомнатную дверь рекомендуется уже на следующий день. Вспененный клей должен полностью застыть и зафиксировать дверной короб.
Источник: https://mebel-doma23.ru/novosti/kak-postavit-mezhkomnatnye-dveri-shag-3-ustanovka-dvernoy-korobki
Простая установка межкомнатных дверей. Как сделать разметку
Установка дверей своими руками потребует от новичка трудозатрат. Если мастер завершит монтаж за 1 день, то начинающий строитель может потратить намного больше времени. Этот момент нужно учитывать, если требуется экстренный монтаж конструкции.
Важно выполнить все этапы в четкой последовательности, строго соблюдая строительные нормы. Ряд дверных блоков уже имеет крепления для монтажа. Но есть изделия, коробку которых придется собирать своими силами. Они представляют собой наборы, в которые входят бруски из дерева и планок для наличников. Кроме того, в готовый набор производитель включает дверное полотно.

Решив собрать коробку своими силами, можно воспользоваться разными методами. Нужно обратить пристальное внимание на качество работы, ведь при возникновении даже малейшей погрешности в измерениях придется либо делать всю работу заново, либо покупать новые части конструкции.

Установить дверь в межкомнатную перегородку можно с порогом и без него. Самым простым вариантом станет монтаж конструкции без порога, а вот 2 вариант потребует наличия бруса-планки. В этом случае готовая конструкция будет иметь вид прямоугольника.
Пошаговая инструкция станет подспорьем. Перед тем как начать работу, необходимо снять точные размеры. Сначала нужно узнать габариты проема. Потом следует сделать расчеты, определив размеры боковых стоек и притолоки. Затем нужно определить оптимальный размер полотна двери, не забывая о технологических зазорах. Сделав разметку, элементы отпиливают при помощи ножовки, а потом начинается сборка межкомнатных дверей.
Важно правильно рассчитать толщину коробки, которая должна быть не меньше толщины стены. Для того, чтобы измерения были четкими, нужно использовать рулетку. Начинающие строители не должны полагаться на то, что одинаковые элементы, например, боковые стойки, будут «зеркальными». Чтобы избежать погрешности при измерении, каждый элемент нужно измерять отдельно с правой стороны, а потом и с левой. Если в процессе будут обнаружены отклонения, то их следует обязательно учесть в дальнейшей работе.

Как установить межкомнатную дверь самостоятельно? Особо внимательно нужно выставлять притворный брус, который должен иметь зазор под монтажную пену. Достаточно выделить на него 1 см. Аналогично следует поступить с притолокой и петельным бруском.
Зазор с внутренней стороны должен быть намного меньше, достаточно 0,3 см. Если межкомнатная дверь будет с порожком, то зазор должен идти по всему периметру конструкции. При монтаже конструкции без порожка между полом и полотном нужно оставить щель. Среднее значение составляет 1 см. Такая сборка и установка межкомнатных дверей будет считаться выполненной правильно.
На вертикальных стойках необходимы отметки для отпиливания, которые определяют на внутренней стороне бруска. При недостаточных размерах отверстия его необходимо увеличить. Если отверстие слишком велико, то его уменьшают путем укладки гипсокартона, вырезанного по размеру.

Источник: https://mebel-doma23.ru/novosti/kak-postavit-mezhkomnatnye-dveri-shag-3-ustanovka-dvernoy-korobki