Сколько надо обоев на комнату 12 метров квадратных. Сколько обоев нужно на комнату
- Сколько надо обоев на комнату 12 метров квадратных. Сколько обоев нужно на комнату
 - Сколько рулонов обоев нужно на 17 кв. Рассчитаем рулоны обоев
 - Сколько рулонов обоев нужно на 20 кв. Как посчитать, сколько нужно обоев
 - Простой расчет обоев. Калькулятор расчета обоев
 - Сколько рулонов обоев нужно на 9 кв. Расчет по периметру комнаты и количеству полос
 - Сколько рулонов обоев надо на комнату 12 кв м. Расчет обоев по площади комнаты и периметру. Простая и понятная таблица.
 - Сколько нужно рулонов обоев на комнату 18 кв м. Зачем мерять
 
Сколько надо обоев на комнату 12 метров квадратных. Сколько обоев нужно на комнату
Нередко, приходя в магазин обоев, покупатели уже довольно подкованы в вопросах качества обоев и цены за рулон. Они знают какие обои и каких производителей лучше покупать и клеить на стены. Долго продумывают дизайн и структуру, которая им необходима для завершенного образа комнаты или квартиры в целом. Знают даже где купить обои. Но одно «но» может прервать намеченные планы покупки обоев для стен. Это обстоятельство возникает при выяснении вопроса о количестве рулонов, которые нужны для поклейки стен обоями. В данной статье мы попробуем максимально наглядно показать сколько рулонов обоев надо, чтобы поклеить комнату.
Чтобы ответить на вопрос темы, мы сначала определим параметры самой комнаты. А именно, давайте научимся рассчитывать площадь любой комнаты. Для этого нам необходима рулетка или, на крайний случай, сантиметровая лента, которой часто пользуются люди понимающие толк в швейном мастерстве. Приступаем.
Необходимо снять две мерки – длину и ширину комнаты. После этого остаётся только перемножить длину на ширину, воспользовавшись калькулятором.
На рисунке ниже приведена схема расчёта площади комнаты.
Итак, после того как площадь комнаты посчитана, нам необходимо измерить высоту потолков. Пользуемся аналогичными инструментами, я имею в виду рулетку или сантиметровую ленту и получаем значение.
Вот теперь самое главное. Определяем количество рулонов, необходимое нам для поклейки комнаты. Как рассчитать обои нам помогут нехитрые таблицы, которые отличаются только шириной обойного рулона 53, 70 и 106 сантиметров.
Обратите внимание, что расчет сделан на среднестатистическую комнату, в которой имеются одни двери и одно окно.
Также отметим, что сколько рулонов обоев надо будет зависеть от того, нужен ли подбор рисунка. Если обои нуждаются в подгонке рисунка, то на каждые 6 рулонов обоев нужно закладываться еще на один рулон.
Пример расчета:
Допустим мы имеем высоту потолка нашей комнаты 2,35 метра (2 метра 35 сантиметров), а площадь комнаты 16,4 квадратных метра. Округляя площадь до величины, которая есть в нашей таблице мы получаем расчет для площади 18. Далее определяем ширину рулона, которую мы хотим покупать.
Для ширины рулона 53 сантиметра – надо 9 рулонов (т.е. смотрим для высоты потолка 2,5 метра по первой таблице для площади 18).
Соответственно для ширины рулона 70 сантиметров получаем 6 рулонов обоев, а для метровых обоев имеем значение 5. Вот и вся математика.
Сколько рулонов обоев нужно на 17 кв. Рассчитаем рулоны обоев
Нам придется воспользоваться школьными знаниями математики, которые помогут не запутаться в цифрах, однако предварительно определите основные параметры:
- Периметр выбранной для отделки комнаты . Для этого требуется сложить длины всех стен и разделить полученную цифру на 0,53 м или на 1,06 м. Также следует поступать и при использовании нестандартной ширины отделочного материала. Это нам позволит узнать количество полос.
 

Работа со стандартным узким рулоном (0,53 м)
- Ширина и длина рулона . Стандартной считается ширина 53 см и 106 см, остальные нестандартные. При этом длина в первом случае может быть 10,05, 12 или 15 м, во втором – до 25 м. Если у вас потолки в квартире 2,4-2,5 м, значит, узкого хватит на 4 полосы.
 
Для лучшего понимание приведем пример, как узнать сколько нужно обоев на комнату, где:
- общая длина стен составит – 5 и 6 м;
 - потолки – высотой 2,5 м.
 

Клеим «метровые» (1,06 м) полотна
Расчет:
- Ширина 53 см:
 
5*2+6*2=22 м (общий периметр комнаты);
22:0,53≈42 (полосы);
42:4≈11 (рул.).
- Ширина 106 см:
 
22:1,06≈21 (полоса);
Так как в рулоне длиной 25 м будет 10 полос, значит, в нашем случае понадобится 2 рул. Последнюю полосу придется состыковать внизу, чтобы не докупать новый.
На самом деле, данный подсчет будет несколько приблизительным. Итак, зная основные параметры, сколько нужно обоев на комнату 12 метров по периметру определить уже несложно, а именно: 12:0,53:4≈6 штук.

Расчет материала при высоте стен 3 м
Общая формула расчета
Из сказанного выше можно с легкостью составить общую формулу для данных действий: P:L:3 (с подгонкой рисунка) или 4 (без подгонки изображения), где P – периметр комнаты, L – ширина рулона обоев.
Совет: полученный результат следует всегда округлять в большую сторону.
Теперь настал черед поговорить о пространстве под окном и над дверным проемом, так как на данных участках приходиться использовать не целую полоску обоев. Один из вариантов – воспользоваться остатками от подгонки рисунка. Тем самым вы сможете сильно сэкономить на ремонтных работах.
Совет: для определения, сколько нужно обоев на комнату 20 метров по площади с длиной стен 5 и 4 м, нужно: (5*2+4*2):1,06:10≈1 (рул).

Расчет площади стен
Если вы любитель точных цифр, сделайте следующее:
- определите по формуле количество рулонов, не учитывая пространство над дверью и под окном;
 - добавьте к ним необходимое количество для этих участков.
 
В этом случае результат окажется максимально полным.
Давайте определим, сколько нужно обоев на комнату 16 метров и 17 метров с подгонкой рисунка:
- 16:0,53:3=10 рул.;
 - 17:0,53:3=11 рул.
 
Рекомендации профессионалов
Ниже будет предложена инструкция подсчета количества обоев для экономных домашних мастеров:
- Если на настенных покрытиях подразумевается повторяющийся узор, уточните у продавца размер его шага и разделите параметр высоты на эту цифру.
 - Округлите полученное число и умножьте его на тот же размер шага изображения. Найденная в результате цифра будет являться длиной полосы, которую нужно отрезать от полотна.
 - Вычислите разницу, которая уйдет в отход, отняв от длины обойной полосы высоту стены.
 - Разделите общую длину рулона на длину полосы, которую вы нашли во 2-ом пункте, у вас получится коэффициент. На него умножьте разницу, найденную в пункте 3. Получите общую величину отходов и вычтите ее из общей длины.
 
Теперь разделите значение оклеиваемой площади на чистое от отходов число из пункта 4. Данный результат количества рулонов будет окончательным.
Сколько рулонов обоев нужно на 20 кв. Как посчитать, сколько нужно обоев
От размера помещения (об этом ниже) и от дизайна. В одном рулоне обычно 10 метров. Если обои однотонные, а высота потолка 2,5 метра, вы сможете разрезать рулон на четыре полосы. Если же рисунок придётся подгонять, полос будет три.
Свободная стыковка
stroyday.ru
Никакого совмещения рисунка: рулон просто разрезается на нужное количество полотнищ. Обычно это однотонные обои, обои с абстрактным рисунком или в вертикальную полоску.
Прямая стыковка
stroyday.ru
Рисунок придётся совмещать по горизонтали так, чтобы соседние полосы начинались с одинаковых элементов. И здесь всё будет зависеть от высоты раппорта — расстояния, через которое повторяется рисунок (указывается на этикетке). В худшем случае придётся выкидывать почти полную высоту раппорта, поэтому при расчёте её надо добавлять к высоте потолка.
Смещённая стыковка
stroyday.ru
Рисунок расположен по диагонали, поэтому каждое полотно смещается. Как правило, на половину раппорта. В этом случае к высоте потолка нужно прибавлять высоту раппорта и величину смещения: оба числа вы найдёте на этикетке.
Как рассчитать количество обоев с помощью таблиц
Это идеальный способ, если комната квадратная или прямоугольная, а обои не требуют подгонки. Нужна лишь площадь комнаты и высота потолка.
Расчёт количества узких обоев (ширина – 53 см, длина – 10 метров).
remont-otdelka-m.ru
Расчёт количества широких обоев (ширина — 106 см, длина — 10 метров).
remont-otdelka-m.ru
Как рассчитать количество обоев математически
Если помещение имеет сложную форму, есть загибы и ниши, лучше считать по периметру. Для этого нужно сложить длины всех стен. Оконные и дверные проёмы шириной меньше 60 см приравниваются к ровной стене, более широкие исключаются из расчёта. Полученное значение округляется в большую сторону.
Пример: 2,75 м + 3 м + 0,4 м + 2,85 м + 4 м + 0,65 м = 13,65 м ≈ 14 м.
Затем необходимо определить количество полос: поделить периметр на ширину рулона. Вернёмся к нашему примеру: 14 м / 1,06 м = 13,2. Округляем в большую сторону — 14 полотен широких обоев. Для узких обоев: 14 м / 0,53 м = 26,4. То есть 27 полос.
Теперь нужно определить, сколько полос можно получить из одного рулона: длину рулона нужно разделить на длину полосы. И тут может быть три варианта:
- Если обои не требует подгонки, длина полосы равна высоте потолка. 10 м / 2,75 = 3,6 ≈ 3.
 - Если обои с прямой стыковкой, длина полосы равна сумме высоты потолка и высоты раппорта (0,6 м). 10 м / (2,75 + 0,6) = 2,9 ≈ 2.
 - Если обои с совмещённой стыковкой, длина полосы равна сумме высоты потолка, высоты раппорта (0,6 м) и величины смещения (0,3 м). 10 м / (2,75 + 0,6 + 0,3) = 2,7 ≈ 2.
 
Последний шаг: нужное нам количество полос делим на количество полос в рулоне. Если обои будут широкими, 14 нужно поделить на 3 или 2. Если узкими, делить на 3 или 2 нужно будет 27 полос.
Как рассчитать количество обоев с помощью сервисов и приложений
Самый быстрый способ, если знаешь параметры помещения, и самый простой, если не дружишь с математикой. В Сети множество калькуляторов обоев, вот лишь несколько добротных.
- Калькулятор обоев от calc.by. Считает и по площади, и по периметру, позволяет исключать из расчёта дверные и оконные проёмы. Также можно задать ширину и метраж рулона.
 - Калькулятор обоев от calc.ru. Производит расчёт по периметру. Помогает определить, сколько нужно обоев и клея.
 - Калькулятор обоев от remont-online.com. Сначала выбирается конфигурация комнаты, потом вбивается ширина стен и обоев. Также можно указать цену за рулон, чтобы узнать итоговую стоимость оклейки.
 
Если вы уже в магазине, воспользуйтесь для расчётов приложением. Вот два бесплатных с неплохим рейтингом.
Можно ли вернуть в магазин лишние обои
Статья 25 «Закона о защите прав потребителей» предусматривает возврат всего купленного товара , если он не подошёл по фасону или цвету. И при соблюдении ряда условий.
- Обои продавались именно рулонами, а не метражом. В перечне непродовольственных товаров надлежащего качества, не подлежащих возврату или обмену, есть отделочные материалы. Но речь идёт только о товарах, отпускаемых метрами.
 - Обои остались нераспечатанными, не помяты и не поцарапаны.
 - С момента покупки прошло не более 14 дней. При покупке через интернет — 7 дней.
 - Есть чек или иной документ, подтверждающий факт покупки. Если чек не сохранился, можно запросить кассовую ленту (магазины хранят её в течение месяца) либо привлечь свидетелей.
 
Иными словами, если обои разонравились, вы можете отнести их обратно в магазин. Все рулоны. В этом случае продавец предложит вам аналогичный товар, а если такового не найдётся, вы сможете написать заявление о возврате денег.
Вернуть один-два лишних рулона после ремонта будет проблематично. Но крупные магазины обычно идут навстречу покупателям. Ведь они закупают обои большими партиями, и плюс-минус один рулон особо не влияет на реализацию. Лояльность клиентов дороже.
На всякий случай уточните условия возврата перед покупкой.
Простой расчет обоев. Калькулятор расчета обоев
Калькулятор расчета обоев позволит оперативно и максимально точно определить количество обоев, которое потребуется для оклейки комнаты или квартиры в целом.
Данный калькулятор может быть востребован и в случае, когда вы планируете оклеить стены в своей квартире самостоятельно и тогда, когда вы хотите обратиться к профессионалам, поскольку данный расчет поможет определиться и со стоимостью материалов.
Основные показатели, которые потребуются для того, чтобы осуществить расчет обоев : длина, ширина и высота помещения. Также важно знать длину и ширину рулона обоев. Параметры окон и дверей помогут сделать расчет более точным и не учитывать площадь, которая не подлежит оклейке.
Не последнюю роль играет и расцветка обоев. Например, обои, рисунок которых не требует стыковки и «подгонки» можно покупать исходя из расчета, сделанного калькулятором без каких – либо дополнительных вычислений.
А вот если вы предпочитаете обои с крупным рисунком, требующим стыковки, то стандартный способ расчета не уместен. Как правило, прибавляется еще два рулона на комнату, размером не более 22 квадратных метров. Существует закономерность: чем больше величина раппорта, тем больше отходов получится при оклейке. Размер раппорта обычно указывается на этикетке.
И еще один нюанс, при выборе обоев нужно обязательно обращать внимание на серию, поскольку оттенок цвета и насыщенность его может быть разной.
Рассчитать количество обоев поможет форма, расположенная ниже.
Сколько рулонов обоев нужно на 9 кв. Расчет по периметру комнаты и количеству полос
Данный способ предусматривает определение необходимого количества полос обоев, требуемых для оклейки конкретной комнаты. Для этого:
- измеряется длина и ширина комнаты, на основании чего определяется ее общий периметр;
 - измеряется ширина оконного и дверного проема, которая вычитается из общего периметра;
 - полученная величина делится на ширину рулонов обоев, которыми предполагается оклеивать комнату;
 - вычисленное значение округляется до целого значения в сторону увеличения и представляет собой нужное количество полос;
 - эта величина делится на количество полос, которое содержит один рулон обоев в зависимости от его длины;
 - полученное значение также округляется до целого значения, что и представляет собой требуемое количество рулонов обоев.
 
Рассмотрим этот способ расчета на конкретном примере:

Пример. Требуется оклеить обычную комнату размером 7,5 м на 3 м, с высотой потолка 2,5 м, проемом окна 2,1 м на 1,5 м и двери 0,9 м на 2 м. Для оклейки будут использовать обои шириной 53 см и длиной 10 м.
Для расчета требуемого количества рулонов обоев необходимо:
- Определить общий периметр комнаты: (7,5+3)*2=21 м.
 - Определить общую ширину проема окна и двери: 2,1 +0,9=3 м.
 - Вычесть из общего периметра общую ширину проемов: 21-3=18 м.
 - Разделить полученное значение на ширину рулона обоев: 18/0,53=33,9 и округлить результат до целого значения – получается 34 полосы, необходимых для оклейки комнаты.
 - Рассчитать количество полос обоев в одном рулоне, для чего нужно разделить длину рулона на высоту потока: 10/2,5=4.
 - Разделить требуемое количество полос обоев на количество полос в одном рулоне: 34/4=8,5 и округлить эту цифру до целого значения – получается 9.
 

Таким образом, для оклейки данной комнаты потребуется 9 рулонов обоев. При этом следует учитывать, что такой способ не учитывает поверхность стен над и под проемами окон и двери, поэтому желательно дополнительно приобрести еще один рулон.
Сколько рулонов обоев надо на комнату 12 кв м. Расчет обоев по площади комнаты и периметру. Простая и понятная таблица.
Для начала надо измерить длину и высоту комнаты, где вы собираетесь клеить обои. Также стоит измерить дверные и оконные проемы. Это поможет улучшить расчет.
Сперва надо вычислить периметр комнаты:
P = (L одной стены + L смежной стены) * 2
P – периметр;
L – длина.
Расчетная длина полотна, как вычислить?
Чтобы точно знать длину обоев, надо воспользоваться формулой:
Расчетная высота полосы = высота комнаты + шаг орнамента (раппорт) + запас на верхний и нижний припуски (5 см)
Как рассчитать количество полос обоев для оклеивания комнаты
Работа начинается с измерения ширины полос обоев, которые вы выбрали. После этого посчитайте, сколько полос надо для оклейки комнаты:
N полос на комнату = P / ширина полосы обоев
Подсчет с одного рулона.
Узнаем длину рулона, которая обозначена на этикетке. А за тем рассчитывайте по формуле:
N полос с 1 рулона = L рулона / расчетная высота полосы
N – количество.
Расчет рулонов обоев на комнату.
После всей проделанной работы, мы узнаем, сколько же надо рулонов для оклейки помещения:
N рулонов = N полос на комнату / N полос с 1 рулона
Расчет обоев по площади комнаты.
Так как, расчет по периметру не всегда может быть актуальным, потому что в подсчет не включают количество дверей и окон, из-за этого вычисляют количество по площади.
Измеряем площадь стен по следующей формуле:
SО = L стены * H стены
S – площадь;
SО – общая площадь;
H – высота.
Еще надо вычислить площадь стен на которую вы будете клеить обои. Но перед этим надо подсчитать суму дверных и оконных проемов. И после этого воспользоваться этой формулой:
S оклеивания обоями = SО — S окон и дверей
Как рассчитать количество рулонов обоев на комнату.
Если рулон подходит под стандарт 53 см ширина и 10 м длина, он рассчитан приблизительно на 5 кв.м. комнаты.
Для вычисления надо:
N рулонов = S комнаты / S, которую можно поклеить 1 рулоном
На ваших обоях рисунок?
В случае наличия на ваших обоях рисунка, прежде всего надо узнать его рапорт, а после вычислить конечную ему высоту потолка и провести расчет вместе с ней.
Использование таблиц
Для того что бы использовать таблицу, вам надо узнать периметр и площадь комнаты. От этого зависит, какую таблицу вам надо использовать.
Расчет по площади, таблица:
Для использования данного рода таблицы, вы должны знать высоту и квадратуру комнаты. И после вы легко можете узнать необходимое количество рулонов.
Таблица №1 предназначена для обоев равным ширины 53 сантиметров и длиной 10 метров.
Таблица №2 предназначена для обоев равным ширины 70 сантиметров и длиной 10 метров.
Таблица №3 предназначена для обоев равным ширины 106 сантиметров и длиной 10 метров.
Сколько нужно рулонов обоев на комнату 18 кв м. Зачем мерять

На фото — недешёвые отделочные материалы, которые станут более доступными, благодаря правильным замерам
Вопросы наподобие, сколько обоев надо на комнату 14 метров не напрасны, так как отделочные материалы стоят недёшево и их перерасход нежелателен.
Часто, запланировав косметический ремонт в помещении площадью около 20 метров, мы отправляемся в магазин, имея весьма смутные представления о том, что и в каком количестве нам нужно.
Придя в магазин, мы в первую очередь обращаем внимание на расцветку и фактуру материалов. Далее нас интересует цена, и только после этого мы задаемся вопросом, из чего сделаны те покрытия, которые нам нравятся.
Каково же наше удивление, когда мы узнаем, что помимо всех ранее перечисленных отличий, обойные рулоны могут быть разной ширины и длины. Тут же в магазине начинается лихорадочный подсчёт количества погонных метров. В результате вы закупаете материала больше или меньше, чем это нужно.
Если рулонов больше чем надо, это не беда, так как не распакованные излишки можно вернуть продавцу или оставить для проведения последующих ремонтов. Немного хуже если посчитано меньшее количество материалов.
Если отделочного материала будет недостаточно, вам придется отправиться за дополнительным рулоном. Здесь вас может подстерегать существенная неприятность — нужные обои будут, но из другой партии. Казалось бы тот же цвет и та же фактура, но на тон темнее!
Вероятнее всего вы обнаружите разницу уже после поклейки, и исправлять ошибки будет непросто. Ну и наконец, знать, как много обоев потребуется, необходимо затем, чтобы приобрести достаточное количество клея. На упаковке клея указана дозировка из расчета на квадратный метр поверхности или на количество стандартных упаковок.
Чем мерять

Тщательно проводим замеры, чтобы знать, сколько стоит поклеить обои в комнате
Сделать своими руками косметический ремонт в комнате без перерасхода материалов вполне возможно, главное правильно посчитать размеры отделываемой поверхности и купить требуемое количество обоев.
Что потребуется для проведения замеров? Понадобится рулетка не менее 5 метров, карандаш и лист бумаги.
Как мерять

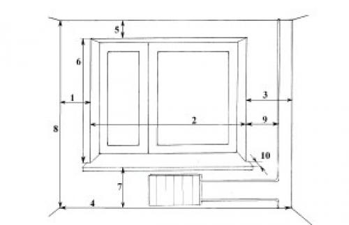
Схема расположения полос для подсчёта материалов
Пожалуй, расскажем о самом простом способе вычислений, который чаще всего применяется обычным человеком, запланировавшим косметический ремонт в квартире.
- Сначала замеряем длину всех стен по периметру помещения.
 - Затем определяем высоту стен от потолка до пола без багетов и плинтусов.
 - Далее определяем ширину и высоту оконных и дверных проемов уровня стен ;
 - Определяем расстояние от верхней части дверных и оконных проемов до потолка и от нижней части подоконника до пола.
 - Теперь проводим подсчеты согласно полученным замерам . Периметр помещения делим на ширину рулона тех обоев, которые предполагается использовать. В результате этих подсчётов мы можем узнать о том, как много потребуется полос.
 - Далее нужно поделить длину рулона на высоту стен и в итоге мы узнаем, число кусков, которые можно нарезать с каждой упаковки обоев (как правило, стандартный при высоте стен в 2,5 м можно нарезать на четыре куска).
 - Теперь, зная, число кусков в рулоне, считаем, сколько необходимо полос и, следовательно, сколько нужно рулонов . В итоге, мы вычислим, сколько потребуется рулонов с учётом цельной полосы.
 - Аналогичным образом считаем, как много потребуется неполных полос . В итоге складываем количество неполных полос и рассчитываем, сколько потребуется на это рулонов.