Сколько рулонов обоев надо на 15 кв м. Рассчитаем рулоны обоев
- Сколько рулонов обоев надо на 15 кв м. Рассчитаем рулоны обоев
- Сколько рулонов сена нужно корове на зиму. Сено для коров: виды, правила подбора и хранения
- Сколько рулонов обоев надо на 9 кв метров. Как определить количество необходимых рулонов?
- Сколько рулонов обоев надо на 17 кв метров. Калькулятор обоев
- Сколько рулонов обоев надо на 18 кв метров. Расчет по периметру комнаты и количеству полос
- Сколько рулонов обоев надо. Расчёт рулонов
Сколько рулонов обоев надо на 15 кв м. Рассчитаем рулоны обоев
Нам придется воспользоваться школьными знаниями математики, которые помогут не запутаться в цифрах, однако предварительно определите основные параметры:
- Периметр выбранной для отделки комнаты . Для этого требуется сложить длины всех стен и разделить полученную цифру на 0,53 м или на 1,06 м. Также следует поступать и при использовании нестандартной ширины отделочного материала. Это нам позволит узнать количество полос.

Работа со стандартным узким рулоном (0,53 м)
- Ширина и длина рулона . Стандартной считается ширина 53 см и 106 см, остальные нестандартные. При этом длина в первом случае может быть 10,05, 12 или 15 м, во втором – до 25 м. Если у вас потолки в квартире 2,4-2,5 м, значит, узкого хватит на 4 полосы.
Для лучшего понимание приведем пример, как узнать сколько нужно обоев на комнату, где:
- общая длина стен составит – 5 и 6 м;
- потолки – высотой 2,5 м.

Клеим «метровые» (1,06 м) полотна
Расчет:
- Ширина 53 см:
5*2+6*2=22 м (общий периметр комнаты);
22:0,53≈42 (полосы);
42:4≈11 (рул.).
- Ширина 106 см:
22:1,06≈21 (полоса);
Так как в рулоне длиной 25 м будет 10 полос, значит, в нашем случае понадобится 2 рул. Последнюю полосу придется состыковать внизу, чтобы не докупать новый.
На самом деле, данный подсчет будет несколько приблизительным. Итак, зная основные параметры, сколько нужно обоев на комнату 12 метров по периметру определить уже несложно, а именно: 12:0,53:4≈6 штук.

Расчет материала при высоте стен 3 м
Общая формула расчета
Из сказанного выше можно с легкостью составить общую формулу для данных действий: P:L:3 (с подгонкой рисунка) или 4 (без подгонки изображения), где P – периметр комнаты, L – ширина рулона обоев.
Совет: полученный результат следует всегда округлять в большую сторону.
Теперь настал черед поговорить о пространстве под окном и над дверным проемом, так как на данных участках приходиться использовать не целую полоску обоев. Один из вариантов – воспользоваться остатками от подгонки рисунка. Тем самым вы сможете сильно сэкономить на ремонтных работах.
Совет: для определения, сколько нужно обоев на комнату 20 метров по площади с длиной стен 5 и 4 м, нужно: (5*2+4*2):1,06:10≈1 (рул).

Расчет площади стен
Если вы любитель точных цифр, сделайте следующее:
- определите по формуле количество рулонов, не учитывая пространство над дверью и под окном;
- добавьте к ним необходимое количество для этих участков.
В этом случае результат окажется максимально полным.
Давайте определим, сколько нужно обоев на комнату 16 метров и 17 метров с подгонкой рисунка:
- 16:0,53:3=10 рул.;
- 17:0,53:3=11 рул.
Рекомендации профессионалов
Ниже будет предложена инструкция подсчета количества обоев для экономных домашних мастеров:
- Если на настенных покрытиях подразумевается повторяющийся узор, уточните у продавца размер его шага и разделите параметр высоты на эту цифру.
- Округлите полученное число и умножьте его на тот же размер шага изображения. Найденная в результате цифра будет являться длиной полосы, которую нужно отрезать от полотна.
- Вычислите разницу, которая уйдет в отход, отняв от длины обойной полосы высоту стены.
- Разделите общую длину рулона на длину полосы, которую вы нашли во 2-ом пункте, у вас получится коэффициент. На него умножьте разницу, найденную в пункте 3. Получите общую величину отходов и вычтите ее из общей длины.
Теперь разделите значение оклеиваемой площади на чистое от отходов число из пункта 4. Данный результат количества рулонов будет окончательным.
Сколько рулонов сена нужно корове на зиму. Сено для коров: виды, правила подбора и хранения

Животноводство является востребованной и популярной отраслью сельского хозяйства, требующей наличия не только большого количества физических усилий, но и специальных знаний. Фермеры и агротехнические компании, которые занимаются разведением крупного рогатого скота, обеспечивают население всеми необходимыми молочными и мясными продуктами.
При разведении КРС опытные фермеры рекомендуют особое внимание уделить зимнему рациону коров, который в большей мере состоит из сухого сена. Именно от качества и количества витамином в данном корме зависит иммунитет животного в период низких температур, а также его способность дать полноценное потомство и сохранить вкусовые качества молока и мяса.
Виды
Сухое сено – главный компонент зимнего рациона коров. Данный корм может состоять как из посевных, так и из пастбищных растений, которые могут быть и одногодичными и многогодичными. Самыми популярными травами для зимнего кормления являются:
- одногодичные бобовые культуры;
- многогодичные мотыльковые культуры;
- злаковые;
- природный кормостой и многотравье.
В зависимости от ботанического признака травостоя сухое сено можно разделить на следующие виды:
- клеверное;
- люцерновое;
- клеверо-тимофеечное;
- злаково-бобовое разнотравное.
Бобовый корм – ценный пищевой продукт для коров, который содержит большое количество витаминов и микроэлементов . В 2 кг корма содержится около 200 грамм быстроусвояемого протеина. Для изготовления бобового сена можно использовать клевер, люцерну, вику, горох, донник и эспарцет. Покос данных растений надо проводить в фазе формирования бутонов при хороших климатических условиях. Введение в зимний рацион высушенных растений поможет решить проблему нехватки белка у животных.
Заготовить злаковый корм можно из кормового овса, суданки, проса, тимофеевки, овсяницы, житняка гребневидного и костреца. Уровень протеина в данном продукте может достигать 20%.
Опытные фермеры рекомендуют смешивать при посеве бобовые и злаковые культуры для получения максимально питательного зимнего корма.
Для заготовки кормов используют не только посевные культуры, но и травы, которые произрастают в естественных условиях. Специалисты отмечают следующие виды сена, заготовленного из пастбищных угодий.
- Горное – корм, который произрастает на горных отводах, расположенных выше лесного пояса. Данный продукт состоит из ежи, тимофеевки луговой, тимофеевки альпийской, райграса, полевицы собачьей, пырея, вейника, зонтичного борщевика, чемерицы Лобелии, эспарцета, мышиного гороха и лядвенца рогатого. Данный корм имеет нежный аромат и высокие вкусовые показатели.
- Суходольное – сено, которое собрано на суходольных полянах. Состоит из луговика, мятликовых, белоуса, овсяницы овечьей, пахучеколосника, лютиков, астровых, сивца, хвоща, погремка и осоки. В данном продукте содержится незначительное количество бобовых.
- Заливное – сено, собранное в поймах рек и может быть крупнотравным и мелкотравным. Крупнотравный продукт состоит из костреца безострого, пырея ползучего, тимофеевки луговой, ежи сборной, вейника, клевера, эспарцета, мышиного гороха, подмаренника, подорожника, журавельника, порезной травы, грыжника, мелантника и лютика ползучего. В состав мелкотравного сена входит мятлик, полевица, тимофеевка степная, клевер, люцерна, астрагал, лядвенец, подмаренник, лютик и подорожник.
- Болотное – корм, который собирают на болотах и на затопленных лугах. В его состав входит осока, ситник, тростник, вейник, камыш и хвощ.
Сколько рулонов обоев надо на 9 кв метров. Как определить количество необходимых рулонов?
Площадь поверхности для оклеивания обоев посчитана, теперь нужно определить количество рулонов. Для этого необходимо внимательно изучить маркировку материала. Нас будут интересовать размеры рулона и расположение рисунка.
Рисунок на обоях может располагаться таким образом, что не будет влиять на способ наклеивания, тогда подгонка не требуется. Но чаще всего смещение рисунка необходимо, и этот фактор нужно учитывать при покупке.
Без смещения
Итак, рассмотрим, как рассчитать количество рулонов обоев без смещения, зная площадь помещения. Вспомним уроки математики. Изучаем маркировку: ширина полотна — 53 сантиметра = 0,53 м, длина — 10 м. Площадь одного рулона — 0,53 х 10=5,3 м2.
Для нашей комнаты расчёт количества будет выглядеть так:
Кол-во рулонов = чистая S стен : S одного рулона,
или 41,6 м2: 5,3 м2=7,8 или 8 рулонов (так как округление выполняется в большую сторону). Лучше купить один рулон про запас, на случай если полотно испортится.
Со смещением
При выполнении ремонтных работ по поклейке не всегда приходится иметь дело с простым геометрическим рисунком, не требующим смещения и подгонки. Чаще всего необходимы знания по расчёту материала со сложным узором. Материал для поклейки со смещением рисунка вычисляется по тому же принципу.
В маркировке полотна производитель указывает расстояние в сантиметрах, необходимое для подгонки материала (например, 20 см). Чем крупнее рисунок, тем выше показатель. Значит, для подбора рисунка необходимо смещать полотно каждой полосы на 20 см. С каждого рулона уйдёт ещё до 0,6 м материала (так как 4 полосы при высоте комнаты 2,5 м для обоев со смещением отмерить не получится).
Таким образом, из одной упаковки получаем 3 отреза по 2,5 м + 0,6 м. Остаток от 10-метрового куска составит не менее 1,9 м.
Совет
Кол-во рулонов с подгонкой рисунка = (кол-во рулонов без подгонки х кол-во отрезов без подгонки в одном рулоне) : кол-во отрезов с подгонкой из одного рулона.
Если для нашей комнаты, площадь оклеиваемой поверхности которой равна 41,6 м2, необходимо смещение с каждого рулона на 0,6 м, то вместо 8 необходимых для совмещения сложного рисунка потребуется 11 штук (8х4:3=10,6 или 11). Таким образом, если обои требуют подгонки (в нашем случае — 20 см), то количество, которое будет необходимо для ремонта помещения — 11 штук.
Сколько рулонов обоев надо на 17 кв метров. Калькулятор обоев

Поклейка обоев — задача для опытного мастера нетрудная. И из личного опыта могу утверждать, что основной проблемой, с которой приходилось чаще всего сталкиваться — нехватка полосы или целого рулона. Заказчик не правильно посчитал, и приходиться докупать и тратить время. Чтобы минимизировать все риски и упростить процесс расчета, рекомендуется воспользоваться представленным ниже калькулятором обоев. Его использование не должно вызвать затруднений. А если что-то будет непонятно — изучите подробную инструкцию и ознакомьтесь с примером расчета.
Онлайн калькулятор обоев
Как пользоваться калькулятором обоев
Чтобы произвести корректный расчет количества обоев для конкретного помещения, необходимо ввести верные исходные данные. Рассмотрим каждый пункт:
- Ширина помещения.
- Длина помещения.
- Периметр помещения. Данный параметр рассчитывается автоматически на основе длины и ширины. Он нужен для определения общей площади всех стен с учетом их высоты.
- Высота потолков — расстояние от пола до потолка.
- Количество дверей в комнате. Если дверей нет — пункты 5, 6, 7 не задаются.
- Высота двери. Если дверей несколько и они имеют различные размеры — укажите наименьшую высоту.
- Ширина двери. Если дверей несколько и они имеют различные размеры — укажите наименьшую ширину.
- Количество окон в комнате. Если окон нет — пункты 8, 9, 10 не задаются.
- Высота окна. Если окон несколько и они имеют различные размеры — укажите наименьшую высоту.
- Ширина окна. Если окон несколько и они имеют различные размеры — укажите наименьшую ширину.
- Длина рулона. Стандартный размер — 10,05 м. Бывают и 25 метровые виниловые обои на флизелиновой основе. Внимательно изучите упаковку — данный параметр там указан.
- Ширина обоев. Стандартные размеры — 53 см и 106 см. Они также указываются на упаковке рулона.
- Раппорт рисунка — высота рисунка ( →I← ). То есть, если раппорт 46 (см), то отрезав из рулона полосу размером 2,5 метра (250 см), в ней будет находится 5 участков по 46 см и один неполный — 20 см. Поэтому, чтобы в следующей полосе рисунок совпал с предыдущей, необходимо отрезать лишний участок в 26 см (46 — 20).
- Сдвинутый рисунок — ступенчатая стыковка (диагональная стыковка) рисунка. Данная маркировка обоев указывается на упаковке. Например, обозначение 46 ⁄ 23 означает, что 43 — это раппорт, а 23 — расстояние в сантиметрах, на которое должен смещаться каждый следующий лист. Отметив при расчете данный пункт, будет задано максимально возможное смещение в пол раппорта.
- Запас на выравнивание — расстояние, необходимое для подгонки и удобной подрезки.
Сколько рулонов обоев надо на 18 кв метров. Расчет по периметру комнаты и количеству полос
Данный способ предусматривает определение необходимого количества полос обоев, требуемых для оклейки конкретной комнаты. Для этого:
- измеряется длина и ширина комнаты, на основании чего определяется ее общий периметр;
- измеряется ширина оконного и дверного проема, которая вычитается из общего периметра;
- полученная величина делится на ширину рулонов обоев, которыми предполагается оклеивать комнату;
- вычисленное значение округляется до целого значения в сторону увеличения и представляет собой нужное количество полос;
- эта величина делится на количество полос, которое содержит один рулон обоев в зависимости от его длины;
- полученное значение также округляется до целого значения, что и представляет собой требуемое количество рулонов обоев.
Рассмотрим этот способ расчета на конкретном примере:

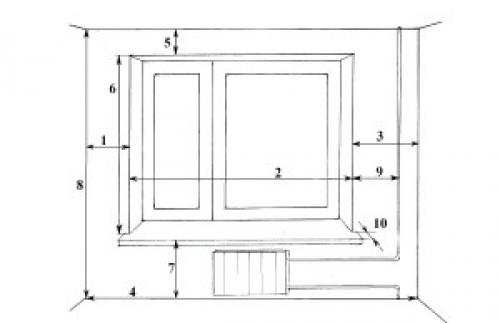
Пример. Требуется оклеить обычную комнату размером 7,5 м на 3 м, с высотой потолка 2,5 м, проемом окна 2,1 м на 1,5 м и двери 0,9 м на 2 м. Для оклейки будут использовать обои шириной 53 см и длиной 10 м.
Для расчета требуемого количества рулонов обоев необходимо:
- Определить общий периметр комнаты: (7,5+3)*2=21 м.
- Определить общую ширину проема окна и двери: 2,1 +0,9=3 м.
- Вычесть из общего периметра общую ширину проемов: 21-3=18 м.
- Разделить полученное значение на ширину рулона обоев: 18/0,53=33,9 и округлить результат до целого значения – получается 34 полосы, необходимых для оклейки комнаты.
- Рассчитать количество полос обоев в одном рулоне, для чего нужно разделить длину рулона на высоту потока: 10/2,5=4.
- Разделить требуемое количество полос обоев на количество полос в одном рулоне: 34/4=8,5 и округлить эту цифру до целого значения – получается 9.

Таким образом, для оклейки данной комнаты потребуется 9 рулонов обоев. При этом следует учитывать, что такой способ не учитывает поверхность стен над и под проемами окон и двери, поэтому желательно дополнительно приобрести еще один рулон.
Сколько рулонов обоев надо. Расчёт рулонов
чтобы определить, какое количество рулонов потребуется для оклейки помещения, нужно посчитать периметр оклеиваемой комнаты с учетом окон и дверей. также уточните длину и ширину обоев.
Если не требуется стыковка и подгонка узора, то расчет будет простым:
Как узнать периметр комнаты?
Периметр – это сумма длин всех сторон. Измерим все стены помещения и сложим их длину.
Пример:
Вычислим периметр гостиной размером 5х6 м. Сложим длину всех ее стен – и получим 22 м.
Сколько всего полотнищ нужно для оклеивания помещения?
Чтобы узнать, сколько обойных полос нужно для конкретной комнаты, разделим периметр на ширину рулонов.
Пример:
Периметр нашей комнаты – 22 м, а ширина обоев составляет 1,06 м. Разделим 22 на 1,06 – и получим 20,75. Округляем результат в большую сторону – и получаем 21 полотнище.
На сколько полотнищ хватит одного рулона?
Чтобы посчитать число полных полотнищ в одном рулоне, разделим его длину на высоту потолка.
Пример:
Длина обойного рулона обычно составляет 10 м. Высота нашей комнаты – 2,75 м. Мастера рекомендуют прибавлять к высоте потолка дополнительный запас в 10 см. для удобства поклейки. Таким образом, значение высоты нашего потолка составит 2,85 м. Если разделить длину (10 м) на это число (2,85 м), то мы получим 3 полных полосы из одного рулона.
Сколько рулонов обоев понадобится?
Чтобы узнать это, надо разделить число всех полотнищ в помещении на полное число полотнищ, которые получаются из одного рулона.
Пример:
В нашем случае расчет будет таким: 21 (число полотнищ) делим на 3 (полотнища из одного рулона) и получаем 7 рулонов обоев шириной – 1,06 м, длиной – 10 м.
Если вы клеите обои с крупным рисунком
Вам потребуется следить за аккуратной подгонкой полос для ровного совпадения узора. Это актуально для дизайнов с большими геометрическими рисунками, изображениями растений и других крупных форм. Здесь нужно учитывать раппорт - расстояние, через которое повторяется одинаковый рисунок. Вам необходимо сосчитать, сколько раппортов приходится на одну длину полотнища. Чем крупнее раппорт, тем большее количество рулонов вам потребуется для оклеивания просторных помещений. Размер раппорта указывается на этикетке. На этикетке вы найдете один из указанных значков:
Прямая стыковка
(указывающая рапорт для обоев ПАЛИТРА это 64 см)
При прямой стыковке обойные полосы клеятся симметрично одна рядом с другой. Такие обои клеятся без специального сдвига для совпадения узора.
Смещённая стыковка
(указывающая рапорт и смещение например 64/32)
Означает, что обойные полосы нужно клеить со смещением. Первая цифра указывает размер раппорта, вторая – число (в см), на которое раппорт нужно сместить.
Пример:
64/32 означает, что узор повторяется через каждые 64 см, а следующая полоса смещается вертикально относительно предыдущего на половину рапорта (32 см).
Важно!
- Если в комнате есть выступы и ниши, их нужно измерить отдельно. Тогда расход обоев увеличится из-за особенностей наклеивания на углах для ровной стыковки полос.
- Рекомендуется иметь 1-2 дополнительных рулона в запасе. Их можно использовать, если поверхность будет испорчена детьми, домашними животными или будет случайно повреждена в ходе ремонта.